Lokschuppen Umbau Büro 2021

DampfWOLKE ALS GlasDACH

Glaswolke über dem Besprechungsraum

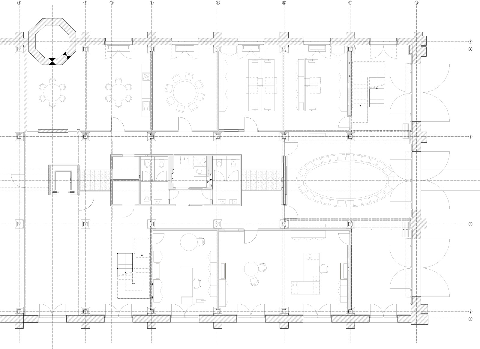
Zwischen den Zügen - eingestellte Servicebox

Auftakt - Stahltreppe zur Galerie

Galerie - offene Bürolandschaft im historischen Dachstuhl

Glasfuge - Details im historischen Dachtragwerk

lebendiger Platz zwischen LOKSCHUPPEN und werkstattgebäude

GRUNDRISS ERDGESCHOSS

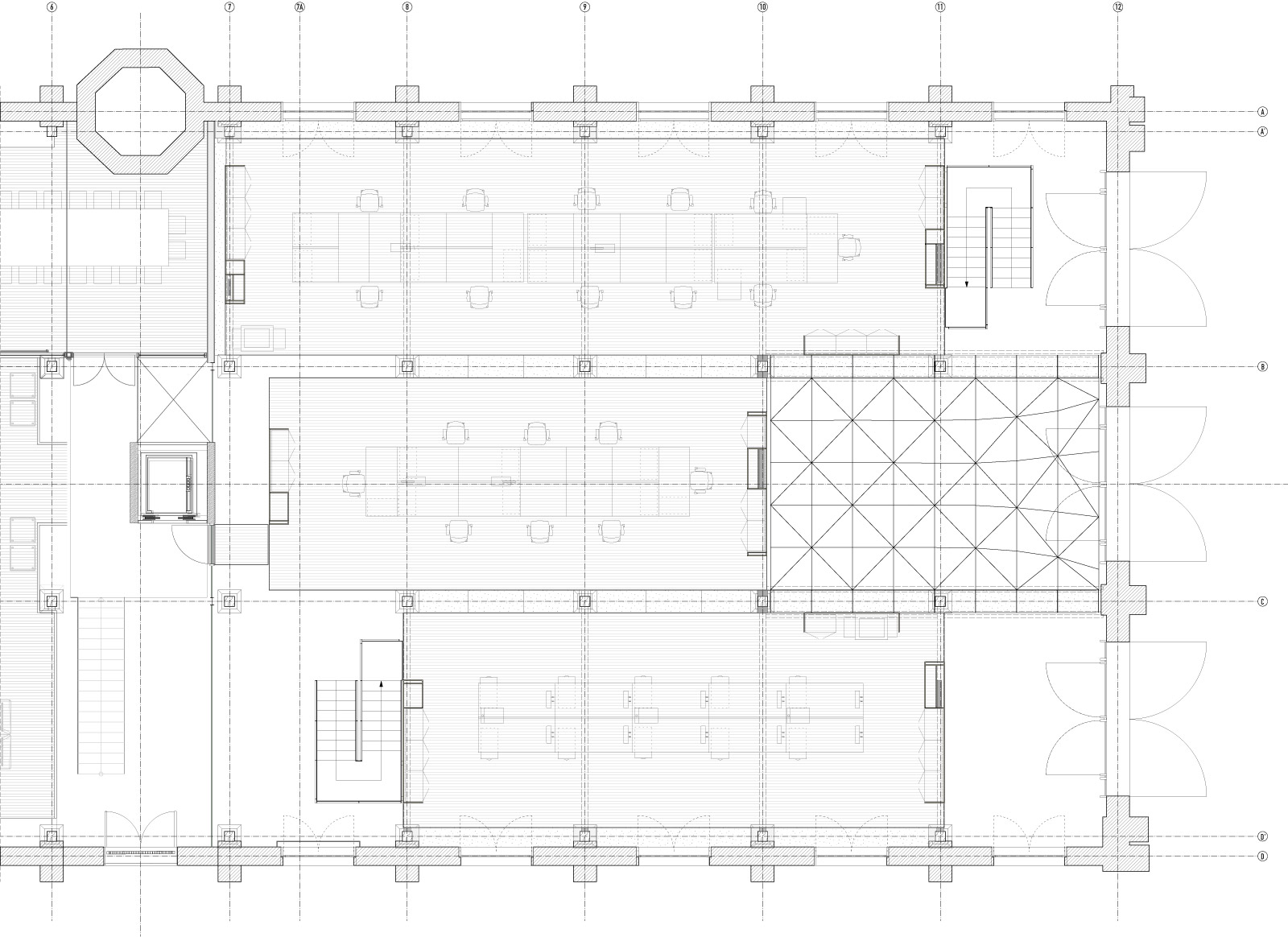
GRUNDRISS OBERGESCHOSS

QUERSCHNITT

BESTAND: GROSSZÜGIGER INNENRAUM
AUFGABE
Sanierung und Umnutzung eines denkmalgeschützten Lokschuppens in zwei Büroeinheiten.
Der Lokschuppen bildet zusammen mit dem sogenannten Werkstattgebäude die „lebendige Mitte“ des sich im Bau befindlichen Glückstein-Quartiers in Mannheim-Lindenhof. Das neue Quartier entsteht auf für seine ursprüngliche Nutzung nicht mehr benötigtem Bahngelände. Das denkmalgeschützte Ensemble aus dem Jahre 1872 bildet zukünftig einen Platz aus, der auch im Außenbereich von der geplanten Gastronomie genutzt werden soll.
Bestand
Der Lokschuppen ist aus dem regional typischen roten Sandstein errichtet. Das Dach der ehemals dreischiffigen Industriehalle wird von einem Holztragwerk getragen.
UMSETZUNG
Für die neue Nutzung wird zunächst die Hülle energetisch ertüchtigt: das Dach wird auf der bestehenden Konstruktion isoliert und in Zink neu gedeckt, das Firstoberlicht mit Isoliergläsern, in deren Scheibenzwischenraum Sonnenschutzlamellen eingelegt sind, neu errichtet. Auf der Gebäudeinnenseite ergänzen neue, energetisch wirksame Tür- und Fensterelemente bestehende Fenster und Tore. Ein neuer Fußbodenaufbau mit Dämmung und Heizung ertüchtigt die bestehende Bodenplatte. Die Sandsteinwände können von außen und innen unverputzt erhalten werden und geben dem Raum eine unvergleichliche Atmosphäre.
Ein gemeinsamer Eingangsbereich erschließt die beiden Büroeinheiten in Gebäudemitte, ein Aufzug und Treppen führen auf die in das Hallenvolumen eingestellte Galerieebene. Die Galerien sind wie drei „Züge“ auf die ehemaligen Gleisstränge gesetzt. Ihre Brettschichtholzdecken werden von Stahlunterzügen und Stützen gehalten, die bestehende Fundamente mitbenutzen. Über dem größten Besprechungsraum wölbt sich ein geschwungenes Glasdach als Trennung vom sonst freien Hallenvolumen, das dem Bild der Rauchwolke einer Dampflok nachempfunden ist. Großzügige Verglasungen im Innenbereich erhalten den Eindruck einer durchgängigen Industriehalle.
Aufgrund des Lärms der direkt benachbarten Bundesstraße und des Gleiskörpers der DB muss das Gebäude mechanisch belüftet und klimatisiert werden. Die Haustechnik ist weitgehend unsichtbar in die ehemaligen Arbeitsgruben unter den drei Gleissträngen eingebaut, die Frisch- und Fortluftversorgung nutzt die drei historischen Hauben auf dem Dachfirst.
BAUHERR
K&K GmbH
STANDORT
Mannheim-Lindenhof
FOTOGRAF
Dietrich Bechtel
Perspektiven

BLICK IN DEN BESPRECHUNGSRAUM

RAUMERLEBNIS DURCH OFFENE GALERIE BLEIBT ERHALTEN
