Schafstall Ihlow Baugemeinschaft 2025

Fassade Süd-Ost

Fassade Ost mit Gauben

Fassade Nord-West mit Terrassen

Filtermauerwerk aus Bestandziegeln
Dachgestaltung

Dachgaube - Fassade Ost

Dachgaube zeichnungen
Entwurf

Fotoperspektive

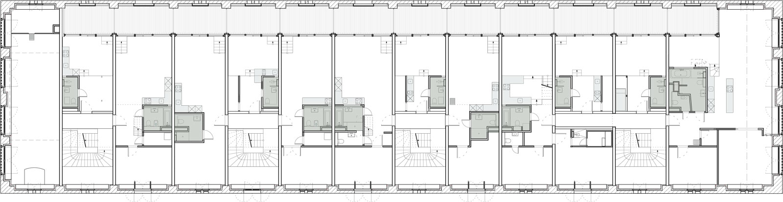
Grundriss Obergeschoss

Treppenhaus
Im Aufbau

Dachaufbau - Fassade Ost

Innenräume im Aufbau

Innenräume im aufbau mit Wandheizung

Baustelle mit Rohbauwänden und Temporärem Überdach

Rohbaudecke aus Holz

Treppe Rohbau

Übersicht Baustelle zu Baubeginn

Neue bodenplatte

terrassenöffnung neu und Treppenhausanschluss keller
Installationskanal Keller
Zustand vor der Sanierung

schafstall Aussen bestandssituation
schafstall Innen Bestandssituation

Schäfers alte Tafel
AUFGABE
Auf dem Grundstück Ihlower Ring 5 c in Ihlow - Oberbarnim wird ein denkmalgeschützter Schafstall zu einem Mehrfamilienhaus mit 24 Wohnungen (zwischen ca. 42 qm und 153 qm Wfl.) und einer Gemeinschaftseinheit (78 qm Wfl.) umgebaut.
BESTAND
Bei dem Schafstall handelt es sich um ein Einzeldenkmal im Ensembelschutz. Er gehört zum Ensemble der Gutsanlage Ihlow.
Der Massivbau ist vollunterkellert. Der Keller besteht aus einem gemauerten Kreuzgewölbe. Die Aussenwände im unteren Bereich aus einem Feldsteinmauerwerk und im oberen Bereich aus Ziegelmauerwerk. Eine Stützen- Balkenkonstruktion bildet die Grundlage für die ehemaligen Heuböden. Ein davon unabhängiges Holzstabwerk bildet die tragende Konstruktion für das Dach.
UMSETZUNG
Um den Ensembelschutz zu erhalten werden die Fassaden behutsam der neuen Nutzung angepasst.
Das Dach wird Ortsüblich wieder mit Ziegeln gedeckt. Um im Obergeschoss helle Wohnräume zu erzeugen ohne das Dach mit Dachfenstern zu zerteilen, wurden "Doppelgauben" entwickelt, die 2 große Fenster in einem Element aufnehmen können.
Zur Erstellung der Wohnungen werden im Achssystem der Gewölbekeller tragende Massivwände erstellt. Diese bilden die Grundlage für die Wohnungsaufteilung. Dafür wird die marode Holzkonstruktion im Inneren entfernt.
Das Gebäude wird über vier innenliegende Treppenhäuser erschlossen.
Der Gemeinschaftsbereichs befindet sich auf der südlichen Giebelseite, hier werden die Holzbinder und der Heuboden wieder hergestellt.
NACHHALTIGKEIT
Das Dach ist eine Holzkonstruktion mit Holzfaserdämmung und Ziegeldeckung.
Die Innendämmung besteht ebenfalls aus Holzfasern. Es werden Lehmputz und Lehmfarben eingesetzt.
Vorhandenen ausgebaute Baustoffe werden an anderer Stelle wieder eingesetzt. Die Klimahülle endet im Erdgeschoss. Der Keller wird nicht gedämmt. Das vorhandene Raumklima wird dort erhalten. Die neue äussere Abdichtung der Kellerwände wird zielgerecht und wirtschaftlich eingebracht.
BAUHERR
Baugemeinschaft Ihlow GbR
STANDORT
Ihlow Oberbarnim
BAUBEGINN - Fertigstellung
2022 - 2025
LEISTUNGEN
LP 1-5, Teile der LP 8
Konzeption und Projektentwicklung Steffen Keinert
ZUSATZLEISTUNGEN
Innenausbau, Gestaltung von Möbeln, Farb- und Lichtkonzept
PROJEKTGRÖSSE
3.477 qm Brutto Geschossfläche ohne Terrassen
1.604 qm Wohnfläche ohne Terrassen
FOTOGRAF
Eyrich Hertweck Architekten und Andere
Bestandsfotos Matthias Hein


